Proposal For Mr. Scott Roelofs
Proposal For Mr. Scott Roelofs
Previous slide
Next slide

25

Years of experience

Scott, Thank You For The Opportunity to bid on your project.

“At Arizona Garage Builders, we have a profoundly ingrained vision for providing the best garage and casita building services”

With over 25+ years of RV garage design and building experience, we have become Arizona’s most trusted garage builder. From the initial concept to design to the finished garage, we ensure our clients get exactly what they need and want in their new garage or casita build.

Jeff Felt

Founder, CEO

For The Amount Of $394,872

Luxe Development Group Inc DBA Arizona Garage Builders will perform the following:
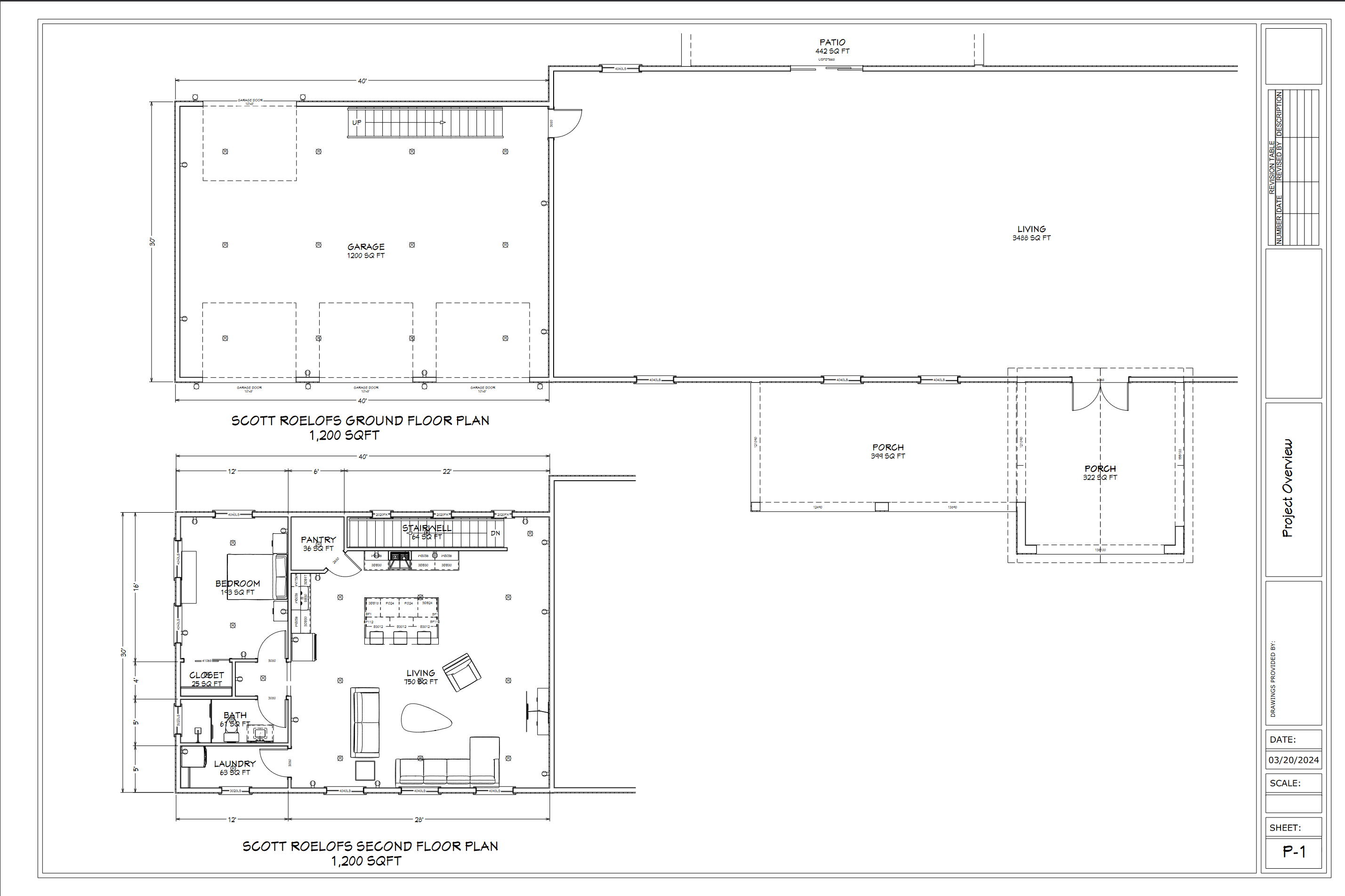
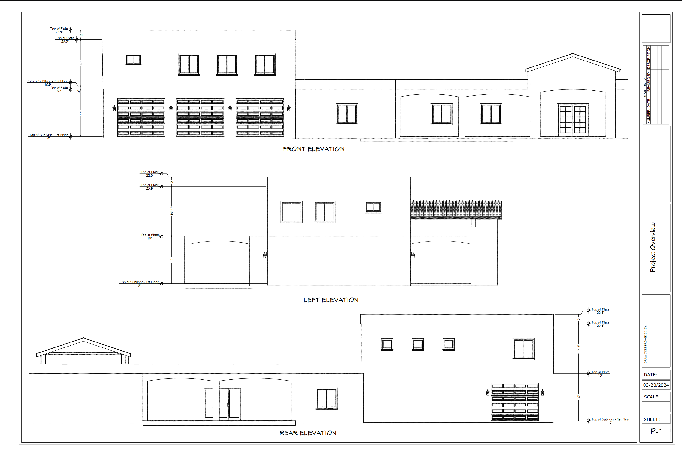
Build a 1,200 sq ft detached garage with 10' tall ceilings and a 1,200 sq ft 2nd story apartment.

Permits and Fees

Blue Stake

Termite Pre-Treatment

Grading and Excavation

Trenching

Framing

Concrete

Roofing

Exterior Finish

Electrical

Interior Painting

Exterior Painting

Plumbing

Drywall

Insulation

Exterior Doors

Interior Doors

Bathroom

Kitchen

cabinetry and countertops

Mechanical

Windows

Baseboards

Garage Doors

Casita FLooring

Demolition

Epoxy Flooring

Stairs

Your Project Management

We Use Buildertrend

Buildertrend is online as a website and also as an app for Apple and Android devices. You can use it to keep track of all the activities during your project 

Your Own User panel on your phone or desktop

Pay your progress payments within the app

Always see the progress of your project’s schedule

Make change orders right from the app, easy peasy.

See images and video through out the process

Access the app 24/7 so you can be in the know