Proposal For Nathan Morton
Proposal For Nathan Morton
Previous slide
Next slide

25

Years of experience

Thank You For The Opportunity to bid on your project.

“At Arizona Garage Builders, we have a profoundly ingrained vision for providing the best garage and casita building services”

With over 25+ years of RV garage design and building experience, we have become Arizona’s most trusted garage builder. From the initial concept to design to the finished garage, we ensure our clients get exactly what they need and want in their new garage or casita build.

Jeff Felt

Founder, CEO

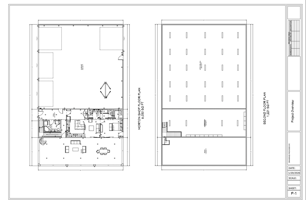
For The Amount Of $900,564

Luxe Development Group Inc DBA Arizona Garage Builders will perform the following:

Permits and Fees

Blue Stake

Termite Pre-Treatment

Grading and Excavation

Trenching

Framing

Concrete

Roofing

Exterior Finish

Electrical

Interior Painting

Exterior Painting

Plumbing

Windows

Mechanical

Insulation

Drywall

Baseboards

Exterior Doors

Interior Doors

Garage Doors

Casita Flooring

BathroomS

Kitchen

Kitchen Cabinetry and Countertops

SEPTIC SYSTEM

Roof Top patio

Garage Loft Flooring

Your Project Management

We Use Buildertrend

Buildertrend is online as a website and also as an app for Apple and Android devices. You can use it to keep track of all the activities during your project 

Your Own User panel on your phone or desktop

Pay your progress payments within the app

Always see the progress of your project’s schedule

Make change orders right from the app, easy peasy.

See images and video through out the process

Access the app 24/7 so you can be in the know