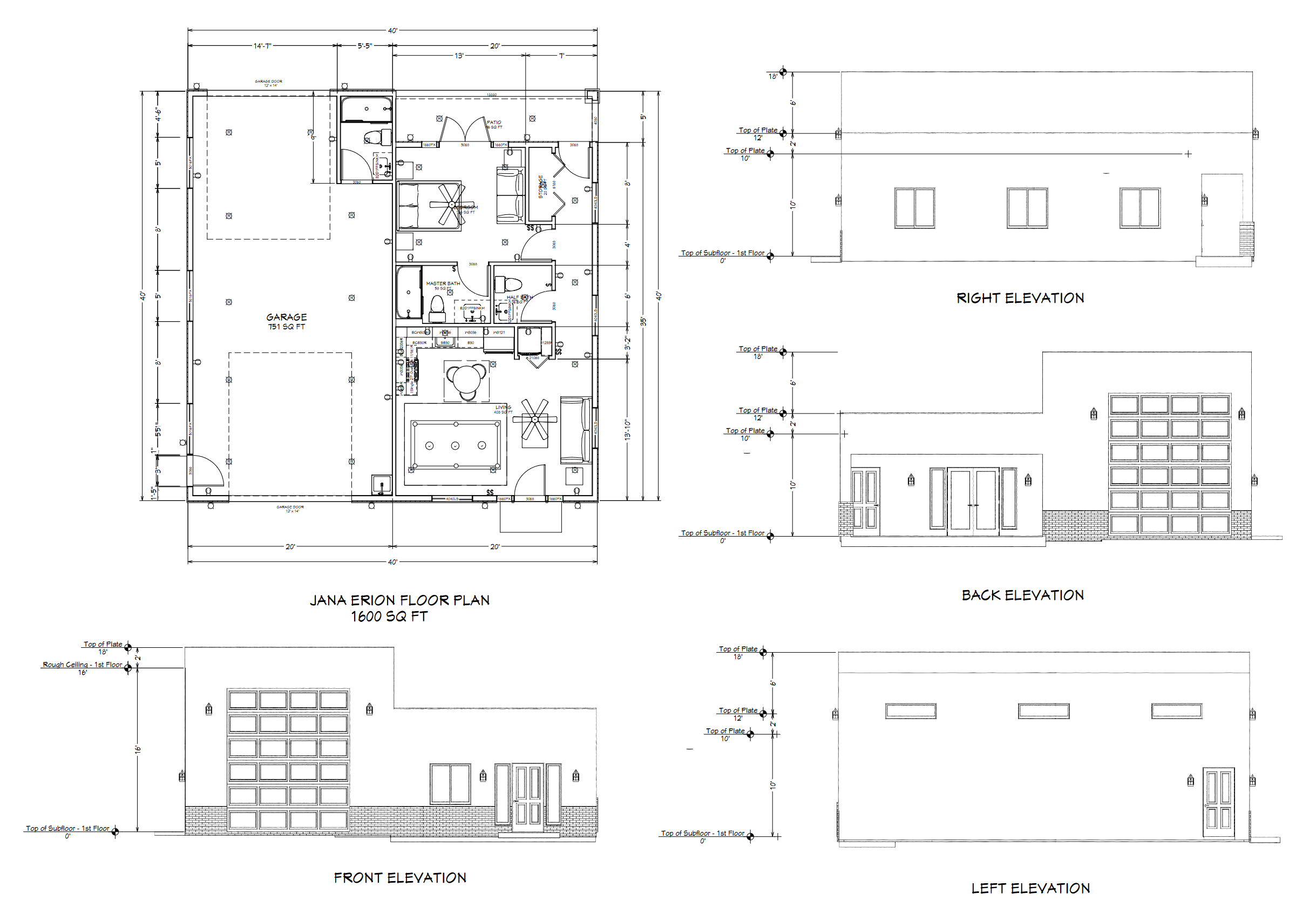
Arizona Garage Builders has an evident vision to be the best RV Garage & Casita designers, and builders. From conception to the final build results, we strive to be the number one builders in all of Arizona.
Providing the highest quality designs, builds, and finished product partnered with second-to-none customer service has developed that vision into reality. We strive to exceed client expectations with every Garage & Casita we build every time, without fail.
Permits and Fees:
Blue Stake
Site:
Termite Pre-Treatment:
Grading and Excavation:
Trenching:
For trenching and/or pulling of electrical lines, plumbing lines, gas lines, water lines etc. there will be a charge of $35 per ft. This is based on having a clear run (no obstacles) such as concrete, brickwork, pavers, trees etc. this would incur additional fees at $225 per hour for labor and equipment.
Concrete:
Framing:
Roofing:
Exterior Finish:
Electrical:
Interior Painting:
Exterior Painting:
Plumbing:
Windows:
Mechanical:
Insulation:
Drywall:
Baseboards:
Exterior Doors:
Interior Doors:
Garage Doors:
Bathroom:
Kitchen:
Flooring Allowance in Casita:
Veneer:
Septic System:
Buildertrend is online as a website and also as an app for Apple and Android devices. You can use it to keep track of all the activities during your project
Your Own User panel on your phone or desktop
Pay your progress payments within the app
Always see the progress of your project’s schedule
Make change orders right from the app, easy peasy.
See images and video throughout the process
Access the app 24/7 so you can be in the know
Our every client every time satisfaction guarantee gives our clients peace of mind throughout the entire garage design and build process. We are not happy if you are not satisfied with every step towards your new garage.
Reach out to our team today for a no-obligation 3D rendering and consultation.
When you hire Arizona Garage Builders you’re going to get people that will work hard to make sure that you 100% happy with your new construction project.